The Grand

Come check out the Grand by Clayton! This 18×80, 3 bedroom 2 bath singlewide home has plenty of space for you and your family! With a full OSB wrap, stainless steel appliances, a dining area, and a walk-in master closet, it’s got everything you need! Give us a call at (318)435-8112 or come by and see it for yourself!

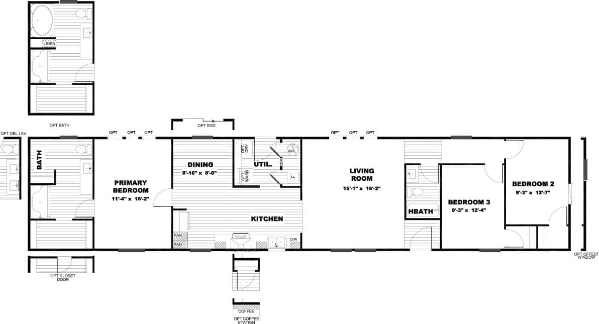
Floor Plan

Model: The Grand
Height/Width: 18x80
Square Feet: 1,440
Bedrooms: 3
Bathrooms: 2

Features

No Carpet
Optional Ceiling Vents
8 Ft. Flat ceilings
Luxury Master Bathroom option
Dining Room with Sliding Glass Door
Stainless Steel Appliances
Low-E Windows

Questions?

Call us at 318.435.8112 or fill out the form below.

"*" indicates required fields

Share

Your Dream Home is Closer Than You Think!

Why wait to make your homeownership dreams a reality? At River Lake Homes, we make it simple to find the perfect home for you and your family. From single wides to double wides, we have a variety of homes to fit every lifestyle and budget—and our financing options make it easier than ever. Call us today or apply online, and let our friendly team guide you every step of the way. Your new home is ready… all that’s missing is you!